37
$537,900 Sale
Listed 7 days ago
73 Bardwell Way
· 3
· 2.5
· 4
· 1707
Key Facts
Key facts for 73 Bardwell Way
Property Type
House, House
Parking
Garage: Yes, 4 parking
MLS #
A2266344
Size
1707 sqft
Basement
Unfinished, Full (Unfinished)
Listed on
-
Lot size
-
Tax
-
Days on Market
-
Year Built
2026
Maintenance Fee
-
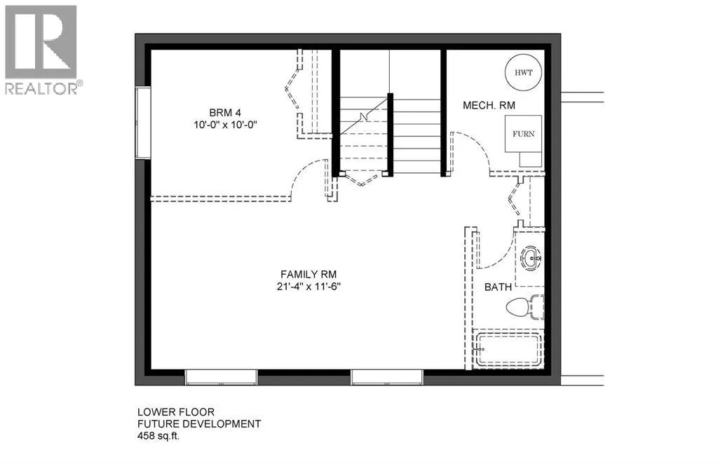
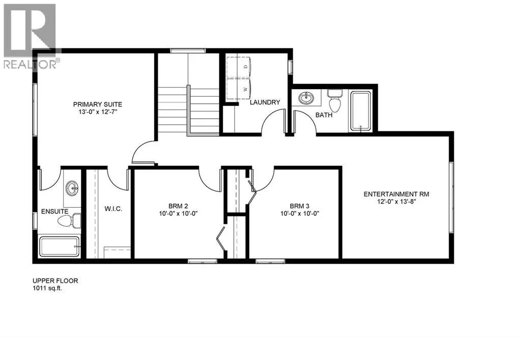
Description
Be the first owner of this brand new Laebon Home situated in the sought after neighbourhood of Beacon Hill, just steps from multiple parks, green spaces, and Beacon Hill Elementary! This stylish Paxton two storey floor plan offers 1707 square feet above grade, a wide open living space, large windows..., 2nd floor laundry, and a large bonus room! The main floor features vinyl plank flooring throughout, and a beautiful kitchen offering two toned raised cabinetry, stainless steel appliances, quartz countertops, a large island with eating bar, and a large walk in pantry. The adjacent eating area has sliding patio doors that lead out to the deck. Head upstairs to find two nicely sized kids/spare rooms that share a large 4 pce bath, and a large master bedroom with its own private 4 pce ensuite and huge walk in closet. Laundry is conveniently located near the bedrooms, and the large and bright bonus room gives you additional living space to enjoy. The attached garage is insulated, drywalled, and taped. If you need more space, the builder can complete the walkout basement development for you, and allowances for blinds and a washer & dryer can also be included to make this a fully move in ready home. Poured concrete front driveway, front sod, and rear topsoil are included in the price and will be completed as weather permits. GST is already included in the purchase price. Live worry free thanks to a full 1 year builder warranty and 10 year Alberta New Home Warranty. Taxes have yet to be assessed. This home is currently under construction and has an estimated completion date of mid February 2026. Photos and renderings are examples of a previous home built with the same floor plan, finishes and colours will not be identical to photos. (id:10452)
Similar Properties (No results)
Room Types
2pc Bathroom
-
Dimensions .00 Ft x .00 Ft
0 sqft
4pc Bathroom
-
Dimensions .00 Ft x .00 Ft
0 sqft
Bedroom
-
Dimensions 10.00 Ft x 10.00 Ft
100 sqft
Listing courtesy of: RE/MAX real estate central alberta
This REALTOR.ca listing content is owned and licensed by REALTOR® members of The Canadian Real Estate Association.